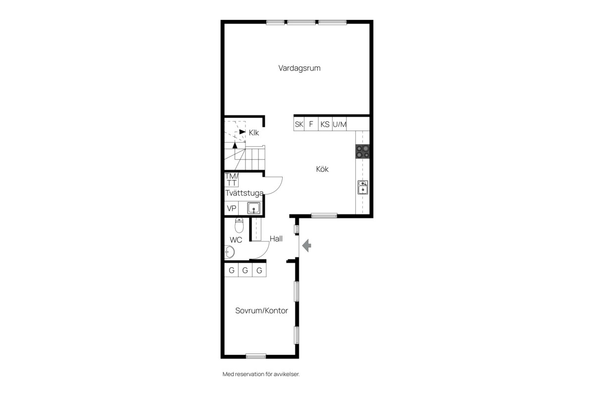
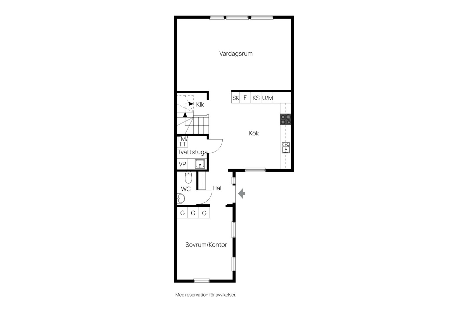
Hall
Välkomnande mindre hall som öppnar upp mot bostaden. Plats för kläder och skor vid entrén.
Kök
Köket är stort, ljust och har gott om plats för ett matbord vid fönstret. Inredningen har luckor i vitt med en bra bänkyta och mycket skåp. Den maskinella utrustningen består av kylskåp, frysskåp, spishäll, fläktkåpa, diskmaskin, inbyggd micro och inbyggd självrengörande ugn.
Vardagsrum
Intill köket finns vardagsrummet med stora fönster mot baksidan och den lilla trädgården.
Sovrum 1, nere
Till vänster från entrén finns ett sovrum som har en bra storlek. Det har tidigare varit ett mindre rum, men ombyggnad har skett så att man fått en större yta.
Gästtoalett
Så skönt att ha en toalett på nedre plan. Denna finns också vid entrén och är ljus och trivsam. Toalett med handfat.
Tvättstuga
Mindre tvättstuga som har tvättmaskin, tumlare och tvättho med hyllor ovanför. Fjärrrvärme-enheten finns också här.
Klädkammare
I utrymmet under trappan finns en praktisk klädkammare till förvaring.
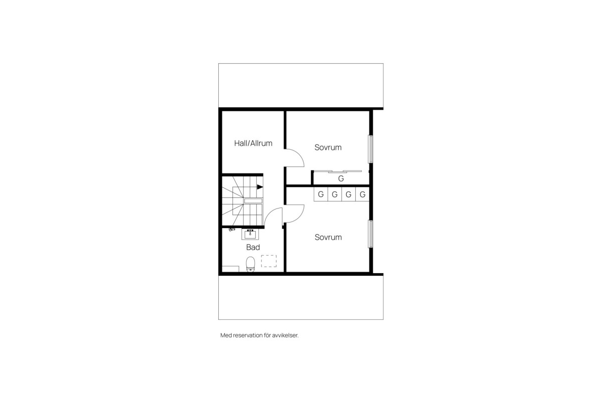
Litet allrum/möblerbar hall
Direkt ovanför trappan finns ett mindre allrum som går fint att använda som en liten tv-hörna, eller kanske till en hemma-arbetsplats.
Sovrum 2
Det största sovrummet, som har gott om plats för en dubbelsäng. Garderober finns längs hela väggen. Gavelfönster.
Sovrum 3
Denna våningens sovrum ligger intill varandra, sovrum 2 är något mindre men även det har en bra storlek. Garderober med spgegelglas. Gavelfönster.
Duschrum
Fräscht duschrum med våtrumsmatta på väggar och golv. Duschhörna, toalett, handfat med kommod. Takfönster.
Vindsutrymme
Det finns en vindslucka med nedfällbar stege, med platts till extra förvaring. Inget golv är lagt idag, men utrymmet är stort och går att utveckla om man behöver denna extra förvaringsyta.
